Používame cookies

Súbory cookie a ďalšie technológie sledovania používame na zlepšenie vášho zážitku z prehliadania našich webových stránok, na to, aby sme vám zobrazovali prispôsobený obsah a cielené reklamy, na analýzu návštevnosti našich webových stránok a na pochopenie toho, odkiaľ naši návštevníci prichádzajú. Viac info

NA PRENÁJOM VEĽKÝ 2-IZBOVÝ BYT 69 m², ul. KRÁTKA, HUMENNÉ

Interné ID: N030TOMB2
Ulica: Krátka
Obec: Humenné
Okres: Humenné
Kraj: Prešovský kraj
Druh: Byty
Typ: Prenájom
Typ bytu: 2-izbový byt
Iné:
550 €/mesiac

Virtuálna prehliadka

Popis nehnuteľnosti

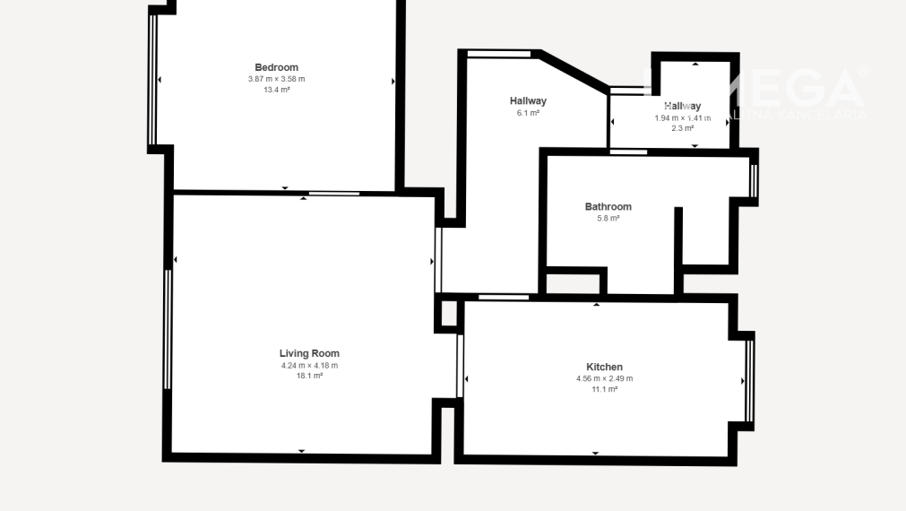
MEGA realitná kancelária ponúka NA PRENÁJOM priestranný a kompletne zariadený 2-izbový byt nachádzajúci sa v tichej a vyhľadávanej lokalite na Sídlisku 1, na ulici Krátka v Humennom.

3D OBHLIADKA: https://my.matterport.com/show/?m=qJ9o4eXSTKu

Základné informácie:

  • rozloha bytu: 69 m²
  • poschodie: 1. poschodie
  • bytový dom: tehlový
  • balkón: áno
  • pivnica: murovaná

Dispozícia bytu:

  • vstupná predsieň
  • veľká kúpeľňa so sprchovacím kútom a toaletou
  • špajza
  • priestranná kuchyňa
  • obývacia izba s výstupom na balkón
  • samostatná spálňa

Stav a vybavenie:

Byt prešiel rozsiahlou rekonštrukciou, ktorá zahŕňa:

  • výmenu elektrických rozvodov
  • vymurovanie bytového jadra
  • nové stierky a výmaľbu
  • znížené stropy
  • modernú kuchynskú linku so vstavanými elektrospotrebičmi
  • byt sa prenajíma kompletne zariadený, vrátane nábytku a elektrospotrebičov, tak ako je zobrazený na fotografiách

Výhody bytu:

  • veľkorysá výmera
  • ideálne 1. poschodie (pod bytom ďalší byt)
  • balkón a murovaná pivnica
  • kompletné zariadenie
  • výborná občianska vybavenosť

Lokalita:

Veľkou výhodou bytu je tichá lokalita, dobrí susedia a výborná dostupnosť. V blízkosti sa nachádza kompletná občianska vybavenosť – poliklinika, školy, škôlky, obchody, služby, ako aj železničná a autobusová stanica.

Ak hľadáte komfortné bývanie v tichej lokalite s výbornou dostupnosťou, tento kompletne zariadený 2-izbový byt môže byť presne pre Vás.

Kompletná cena nájomného je 550 €/mesiac. V cene sú zahrnuté energie (elektrina, voda, teplo, poplatky súvisiace s bytom, televízia, vysokorýchlostný internet) a nájomné.

Pred podpisom nájomnej zmluvy je nájomníkom potrebné uhradiť:

  • poplatok za prenájom za aktuálny mesiac 550 €
  • DEPOZIT vo výške 550 €
  • províziu realitnej kancelárii 550 € (za rezerváciu a sprostredkovanie nájmu)

V prípade záujmu o obhliadku tohto komfortného bytu alebo viac informácií ma neváhajte kontaktovať.

Tomáš Matta

0948 368 183

tomas.matta@megarealitka.sk

Vlastnosti

Status:
aktívne
Vlastníctvo:
osobné
Úžitková plocha:
69 m2
Zastavaná plocha:
69 m2
Podlahová plocha:
69 m2
Stav:
úplne prerobený
Typ budovy:
tehla
Balkón:
áno
Pivnica:
áno
Verejné vonkajšie parkovanie:
áno
Špajza:
áno
Poschodie:
1
Celková plocha:
69 m2
Vykurovanie - centrálne:
áno

Pozrieť na mape

Maklér

Som rodák z mesta Humenné a moje blízke i vzdialené okolie ma vníma ako dlhoročného odborníka v oblasti obchodu. Ako sa vyvíja život, tak aj v tom mojom nastal čas, kedy som moje dlhoročné obchodné skúsenosti, serióznosť, lojálnosť a profesionalitu pretavil v hlbší zmysel a tým je sprostredkovanie jednej z najdôležitejších potrieb človeka - a tým je bývanie.

Mojím cieľom je nájsť Vám nielen nehnuteľnosť, ale najmä bezpečie v podobe domova.

Je pre mňa prvoradým záväzkom poskytnúť Vám špičkový servis, bez zaváhania a budem Vás sprevádzať celou realitnou transakciou s pridanou hodnotou v podobe ľudskosti a dobrého pocitu zo správneho rozhodnutia, ktorý pretrvá roky.

Motto, ktorým sa rád riadim v živote: "Ak nájdeš cestu bez prekážok, určite nikam nevedie" - F.A.Clark

Radi Vám poradíme

Podobné nehnuteľnosti