
PREDAJ čiastočne zrekonštruovaného 3 - izbového bytu Snina
Predaj, Snina
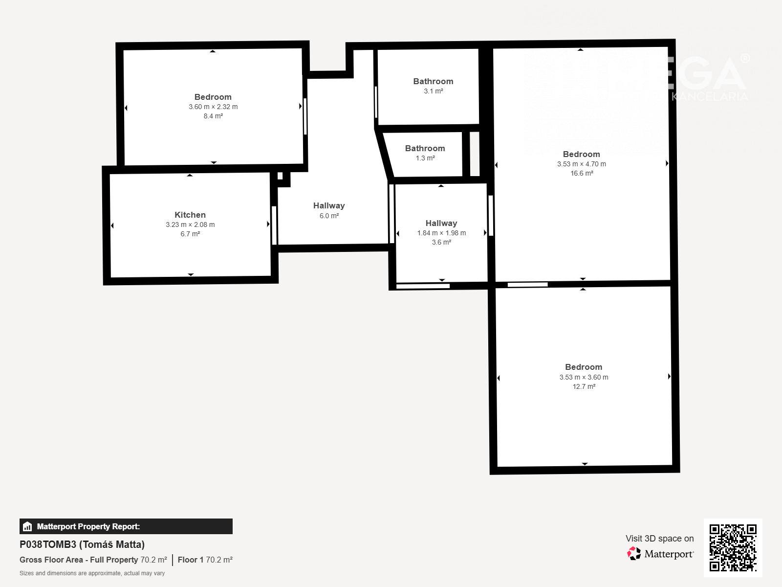
Interné ID: | P038TOMB3 |
---|---|
Ulica: | Laborecká |
Obec: | Humenné |
Okres: | Humenné |
Kraj: | Prešovský kraj |
Druh: | Byty |
Typ: | Predaj |
Typ bytu: | 3-izbový byt |
Iné: |
MEGA realitná kancelária ponúka v EXKLUZÍVNOM zastúpení klienta NA PREDAJ priestranný trojizbový byt nachádzajúci sa v jednej z najvyhľadávanejších lokalít mesta Humenné – na Laboreckej ulici, Sídlisko 3.
Ak hľadáte útulné bývanie v žiadanej lokalite s výbornou občianskou vybavenosťou a množstvom zelene a a stále za RUZUMNÚ CENU NA TRHU, tento byt je pre Vás ideálny.
3D OBHLIADKA: https://my.matterport.com/show/?m=9T2FeeJTTZi
Základné informácie:
Dispozícia:
Byt pozostáva z priestrannej vstupnej predsiene, kuchyne, detskej izby, samostatnej kúpeľne s rohovou vaňou, toalety, obývacej izby, spálne a špajze.
Priestor je svetlý, dobre dispozične riešený a pôsobí útulne.
Stav a vybavenie bytu:
BONUS: Veľkým bonusom je možnosť dobudovania závesného balkóna k tomuto bytu, za zvýhodnenú cenu.
Výhody nehnuteľnosti:
Lokalita:
Uprednostňujeme seriózne a rýchle jednanie, ktoré vieme odmeniť formou zvýhodnených finančných podmienok pre kupujúceho.
V cene nehnuteľnosti je zahrnutý aj kompletný právny servis, vypracovanie zmluvy a poplatky spojené s prevodom vlastníckych práv.
V prípade záujmu o obhliadku tohto bytu alebo viac informácií ma neváhajte kontaktovať.
Tomáš Matta
0948 368 183
Realitný maklér
Som rodák z mesta Humenné a moje blízke i vzdialené okolie ma vníma ako dlhoročného odborníka v oblasti obchodu. Ako sa vyvíja život, tak aj v tom mojom nastal čas, kedy som moje dlhoročné obchodné skúsenosti, serióznosť, lojálnosť a profesionalitu pretavil v hlbší zmysel a tým je sprostredkovanie jednej z najdôležitejších potrieb človeka - a tým je bývanie.
Mojím cieľom je nájsť Vám nielen nehnuteľnosť, ale najmä bezpečie v podobe domova.
Je pre mňa prvoradým záväzkom poskytnúť Vám špičkový servis, bez zaváhania a budem Vás sprevádzať celou realitnou transakciou s pridanou hodnotou v podobe ľudskosti a dobrého pocitu so správneho rozhodnutia, ktorý pretrvá roky.
Motto, ktorým sa rád riadim v živote: "Ak nájdeš cestu bez prekážok, určite nikam nevedie" - F.A.Clark