Používame cookies

Súbory cookie a ďalšie technológie sledovania používame na zlepšenie vášho zážitku z prehliadania našich webových stránok, na to, aby sme vám zobrazovali prispôsobený obsah a cielené reklamy, na analýzu návštevnosti našich webových stránok a na pochopenie toho, odkiaľ naši návštevníci prichádzajú. Viac info

REZERVOVANÝ PRIESTRANNÝ 3-IZBOVÝ BYT S LOGGIOU - HUMENNÉ

Interné ID: P049TOMB3
Ulica: Košická
Obec: Humenné
Okres: Humenné
Kraj: Prešovský kraj
Druh: Byty
Typ: Predaj
Typ bytu: 3-izbový byt
Iné:
93 000 €

Virtuálna prehliadka

Popis nehnuteľnosti

MEGA realitná kancelária ponúka v EXKLUZÍVNOM zastúpení priestranný, vzdušný 3-izbový byt s loggiou s možnosťou prerobiť si ho presne podľa vlastných predstáv.

3D OBHLIADKA: https://my.matterport.com/show/?m=M8samM8y2Kb

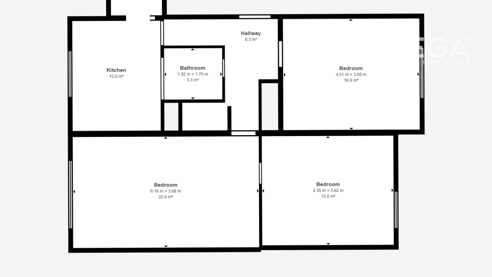
Tento 3-izbový byt sa nachádza na na obľúbenom Sídlisku pod Sokolejom, na 2. poschodí bytového domu s výťahom od prízemia a ponúka celkovú výmeru 73 m², vďaka čomu poskytuje dostatok priestoru pre rodinu aj jednotlivcov, ktorí ocenia komfort a praktickú dispozíciu.

Dispozícia bytu:

  • veľká vstupná predsieň
  • samostatná toaleta
  • kúpeľňa
  • priestranná kuchyňa so špajzou
  • detská izba
  • priestranná obývacia izba
  • spálňa so vstupom na loggiu
  • k bytu prislúcha aj pivnica na prízemí bytového domu

Technický stav a vybavenie:

  • plastové okná
  • vymurovaná stena na loggii namiesto pôvodnej
  • bezpečnostné vchodové dvere
  • plastové rolety na loggii – slúžia ako tienidlo aj ochrana proti dažďu
  • v celom byte kobercová krytina
  • v kuchyni a kúpeľni PVC linoleum v drevodekóre

Byt je v pôvodnom, no veľmi zachovalom a čistom stave, čo novému majiteľovi ponúka ideálnu príležitosť vytvoriť si bývanie presne podľa vlastných predstáv – bez nutnosti okamžitých kompromisov.

Lokalita – Sídlisko pod Sokolejom:

  • plnohodnotne vybavené sídlisko s kompletnou občianskou vybavenosťou – nachádza sa tu škola, škôlka, obchody aj služby, všetko pohodlne dostupné pešo.

Ak hľadáte priestranný byt s veľkým potenciálom, v dobrej lokalite a stále za rozumnú cenu, táto ponuka si rozhodne zaslúži vašu pozornosť.

Uprednostňujeme seriózne a rýchle jednanie, ktoré vieme odmeniť formou zvýhodnených finančných podmienok pre kupujúceho. 

V cene nehnuteľnosti je zahrnutý aj kompletný právny servis, vypracovanie zmluvy a poplatky spojené s prevodom vlastníckych práv. 

V prípade záujmu o obhliadku tohto bytu alebo viac informácií ma neváhajte kontaktovať.

 

Tomáš Matta

0948 368 183

tomas.matta@megarealitka.sk

Ak hľadáte priestranný byt s veľkým potenciálom, v dobrej lokalite a za rozumnú cenu, táto ponuka si rozhodne zaslúži vašu pozornosť.

Vlastnosti

Status:
aktívne
Vlastníctvo:
osobné
Úžitková plocha:
73 m2
Zastavaná plocha:
73 m2
Podlahová plocha:
73 m2
Stav:
pôvodný stav
Loggia:
áno
Pivnica:
áno
Verejné vonkajšie parkovanie:
áno
Špajza:
áno
Poschodie:
2
Celková plocha:
73 m2
Vykurovanie - centrálne:
áno

Informatívna úverová kalkulačka

Pozrieť na mape

Maklér

Som rodák z mesta Humenné a moje blízke i vzdialené okolie ma vníma ako dlhoročného odborníka v oblasti obchodu. Ako sa vyvíja život, tak aj v tom mojom nastal čas, kedy som moje dlhoročné obchodné skúsenosti, serióznosť, lojálnosť a profesionalitu pretavil v hlbší zmysel a tým je sprostredkovanie jednej z najdôležitejších potrieb človeka - a tým je bývanie.

Mojím cieľom je nájsť Vám nielen nehnuteľnosť, ale najmä bezpečie v podobe domova.

Je pre mňa prvoradým záväzkom poskytnúť Vám špičkový servis, bez zaváhania a budem Vás sprevádzať celou realitnou transakciou s pridanou hodnotou v podobe ľudskosti a dobrého pocitu zo správneho rozhodnutia, ktorý pretrvá roky.

Motto, ktorým sa rád riadim v živote: "Ak nájdeš cestu bez prekážok, určite nikam nevedie" - F.A.Clark

Radi Vám poradíme

Podobné nehnuteľnosti