Používame cookies

Súbory cookie a ďalšie technológie sledovania používame na zlepšenie vášho zážitku z prehliadania našich webových stránok, na to, aby sme vám zobrazovali prispôsobený obsah a cielené reklamy, na analýzu návštevnosti našich webových stránok a na pochopenie toho, odkiaľ naši návštevníci prichádzajú. Viac info

R E Z E R V O V A N Ý ÚPLNE NOVÝ 2-IZBOVÝ BYT - HUMENNÉ

Interné ID: N031TOMB2
Ulica: Dobrianskeho
Obec: Humenné
Okres: Humenné
Kraj: Prešovský kraj
Druh: Byty
Typ: Prenájom
Typ bytu: 2-izbový byt
Iné:
1 €/mesiac

Virtuálna prehliadka

Popis nehnuteľnosti

MEGA realitná kancelária ponúkame NA PRENÁJOM úplne nový, čerstvo a moderne zrekonštruovaný 2-izbový byt s balkónom na Dobrianskeho ulici v Humennom. Byt sa nachádza v širšom centre mesta, len 500 metrov od pešej zóny, v tichej a pokojnej lokalite s výbornou dostupnosťou a kompletnou občianskou vybavenosťou.

IBA TERAZ NOVÁ LEPŠIA CENA 500 €/ mesiac (pôvodne 550€)

PRI VÁŽNOM ZÁUJME, BYT VIEME PO DOHODE ZARIADIŤ NOVÝM NÁBYTKOM PODĽA POTREBY - UŽ V CENE PRENÁJMU

3D OBHLIADKA: https://my.matterport.com/show/?m=qemNWSFsBxF

Základné informácie:

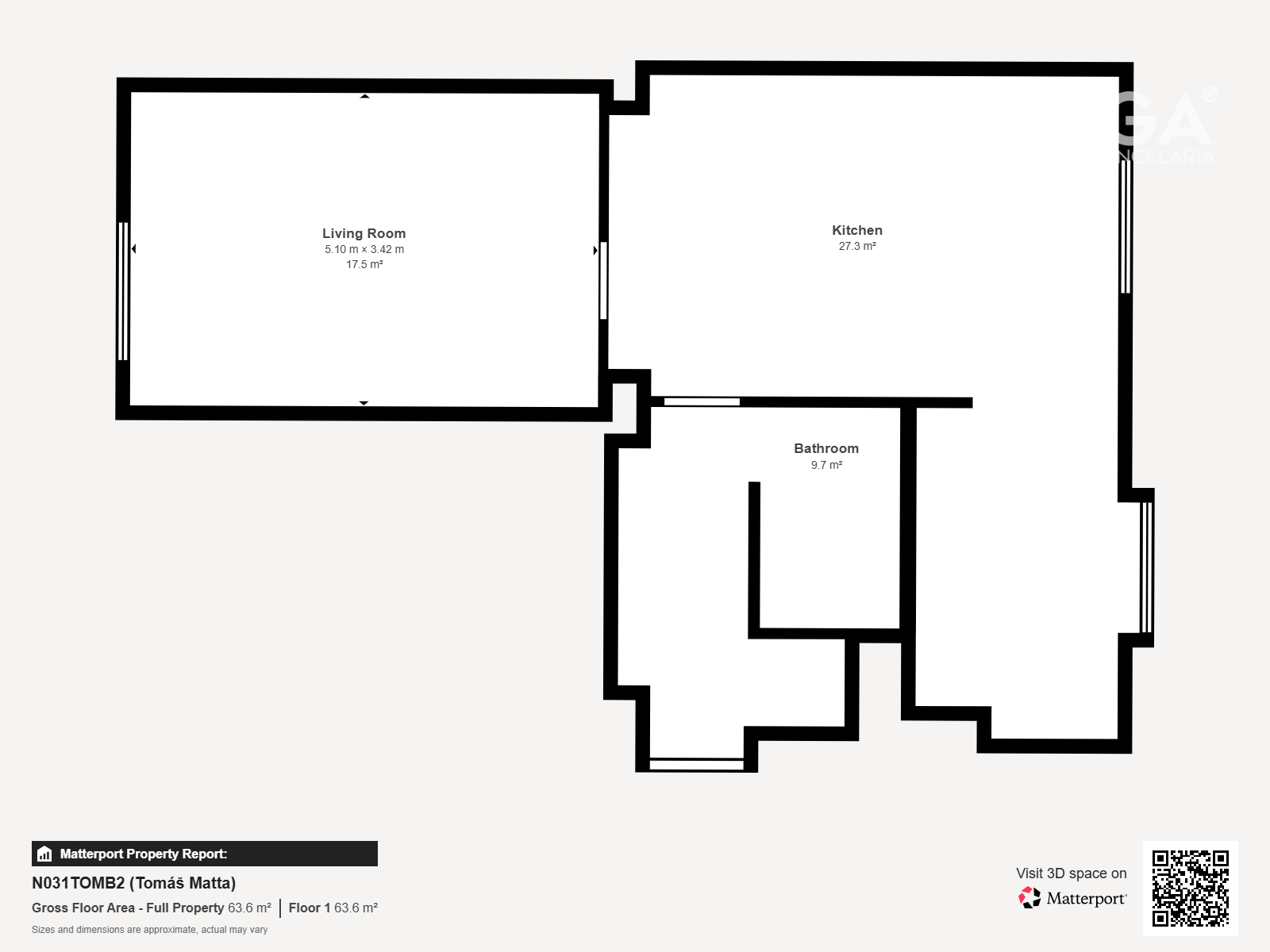
  • byt je situovaný na 2. poschodí tehlového bytového domu
  • celková výmera 53 m²
  • + 2 murované pivnice

Dispozícia bytu:

  • vstupná predsieň
  • samostatná toaleta
  • priestranná kúpeľňa s vymurovaným sprchovým kútom
  • veľká obývacia izba prepojená s kuchyňou
  • samostatná spálňa s výstupom na balkón orientovaný do tichého vnútro bloku

Byt prešiel kompletnou a nadštandardnou rekonštrukciou vrátane dispozičnej zmeny. Všetko je úplne nové a ešte nepoužívané.

Rozsah rekonštrukcie:

  • vyrovnanie podláh, nové kvalitné podlahy a dlažby
  • nové sádrové omietky
  • nové rozvody elektriny, vody a odpadu
  • plastové okná s izolačným trojsklom
  • nové žalúzie
  • nová sanita a vymurovaný sklenený sprchový kút
  • bezpečnostné vchodové dvere
  • nové interiérové dvere s obložkovými zárubňami

Vybavenie:

  • byt sa prenajíma s kompletne vybavenou kuchynskou linkou na mieru od stolára so vstavanými spotrebičmi vrátane chladničky a umývačky riadu
  • vstavaná skriňa na chodbe na mieru s posuvnými dverami, ktorá zabezpečí dostatok úložného priestoru
  • možnosť dozariadiť nábytkom podľa dohody s novým nájomníkom

Lokalita:

  • tichá a vyhľadávaná lokalita v širšom centre mesta. Pešia zóna je vzdialená len 5 minút chôdze. V blízkosti sa nachádzajú obchody, služby, školy, škôlky, zdravotnícke zariadenia aj zastávky MHD
  • ideálna kombinácia pokojného bývania a výbornej dostupnosti.

Tento byt je ideálnou voľbou pre jednotlivca alebo pár, ktorí hľadajú moderné, nové a komfortné bývanie bez ďalších investícií.

Kompletná cena nájomného je 500 €/mesiac. V cene sú zahrnuté energie (elektrina, voda, teplo, poplatky súvisiace s bytom, televízia, vysokorýchlostný internet) a nájomné.

Pred podpisom nájomnej zmluvy je nájomníkom potrebné uhradiť:

  • poplatok za prenájom za aktuálny mesiac 500 €
  • DEPOZIT vo výške 500 €
  • sprostredkovateľský poplatok 275 € (za rezerváciu a sprostredkovanie nájmu)

V prípade záujmu o obhliadku tohto nového a moderného bytu alebo viac informácií ma neváhajte kontaktovať.

Tomáš Matta

0948 368 183

tomas.matta@megarealitka.sk

Vlastnosti

Status:
aktívne
Vlastníctvo:
osobné
Úžitková plocha:
53 m2
Zastavaná plocha:
53 m2
Podlahová plocha:
55 m2
Stav:
úplne prerobený
Typ budovy:
tehla
Balkón:
áno
Pivnica:
áno
Verejné vonkajšie parkovanie:
áno
Poschodie:
2
Celková plocha:
53 m2

Pozrieť na mape

Maklér

Som rodák z mesta Humenné a moje blízke i vzdialené okolie ma vníma ako dlhoročného odborníka v oblasti obchodu. Ako sa vyvíja život, tak aj v tom mojom nastal čas, kedy som moje dlhoročné obchodné skúsenosti, serióznosť, lojálnosť a profesionalitu pretavil v hlbší zmysel a tým je sprostredkovanie jednej z najdôležitejších potrieb človeka - a tým je bývanie.

Mojím cieľom je nájsť Vám nielen nehnuteľnosť, ale najmä bezpečie v podobe domova.

Je pre mňa prvoradým záväzkom poskytnúť Vám špičkový servis, bez zaváhania a budem Vás sprevádzať celou realitnou transakciou s pridanou hodnotou v podobe ľudskosti a dobrého pocitu zo správneho rozhodnutia, ktorý pretrvá roky.

Motto, ktorým sa rád riadim v živote: "Ak nájdeš cestu bez prekážok, určite nikam nevedie" - F.A.Clark

Radi Vám poradíme

Podobné nehnuteľnosti