Používame cookies

Súbory cookie a ďalšie technológie sledovania používame na zlepšenie vášho zážitku z prehliadania našich webových stránok, na to, aby sme vám zobrazovali prispôsobený obsah a cielené reklamy, na analýzu návštevnosti našich webových stránok a na pochopenie toho, odkiaľ naši návštevníci prichádzajú. Viac info

REZERVOVANÝ ZARIADENÝ 2-izbový BYT PO REKONŠTRUKCII – HUMENNÉ

Interné ID: P055TOMB2
Ulica: Tyršova
Obec: Humenné
Okres: Humenné
Kraj: Prešovský kraj
Druh: Byty
Typ: Predaj
Typ bytu: 2-izbový byt
Iné:

Virtuálna prehliadka

Popis nehnuteľnosti

MEGA realitná kancelária Vám ponúka EXKLUZÍVNE NA PREDAJ slnečný, komplexne zrekonštruovaný 2-izbový byt na Tyršovej ulici v Humennom, na vyhľadávanom sídlisku 2A. Byt Vás zaujme nielen svojou výbornou polohou, ale aj príjemnou atmosférou a kvalitnou rekonštrukciou bez ďalších investícií.

3D OBHLIADKA: https://my.matterport.com/show/?m=47E7o7BCEx1

Základné informácie:

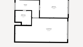
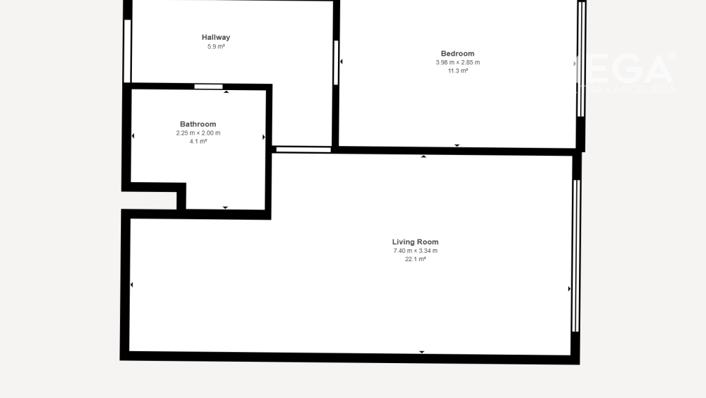
  • výmera: 40,30 m² (vrátane praktickej komory na chodbe)
  • dispozícia: vstupná predsieň, chodba so vstupom do každej miestnosti, veľká kúpeľňa spojená s WC, spálňa, obývačka prepojená s kuchyňou
  • nízke mesačné náklady: iba 105 €
  • byt sa predáva kompletne zariadený – stačí sa nasťahovať
  • kompletná rekonštrukcia bez ďalších investícií
  • slnečný byt s príjemnou atmosférou
  • vyhľadávaná lokalita

Kompletná rekonštrukcia zahŕňa:

  • nové elektrické rozvody
  • nové rozvody vody a odpadu
  • vymurované bytové jadro
  • nová sanita, rohová vaňa, závesné WC
  • čiastočne nové stierky a nová výmaľba
  • nové plastové okná
  • textilné rolety deň a noc + siete proti hmyzu
  • nové podlahy a dlažby
  • nové interiérové dvere
  • nové vchodové dvere
  • vyrovnané podlahy

Zariadenie v cene:

  • byt sa predáva tak, ako ho vidíte na fotografiách – vkusne a kvalitne zariadený:
  • veľká šatníková skriňa na chodbe
  • kuchynská linka na mieru so vstavanými elektrospotrebičmi
  • kompletne vybavená kúpeľňa
  • nábytok, elektrospotrebiče a doplnky

Bytový dom:

  • zrekonštruované spoločné priestory
  • nový výťah od prízemia
  • zrekonštruovaná strecha a vchod
  • spoločná kočikáreň na prízemí

Lokalita:

  • výborná občianska vybavenosť – v blízkosti školy, škôlky, obchody a služby. Rýchla dostupnosť do centra mesta aj ostatných častí.

Tento byt je ideálnou voľbou pre jednotlivca, mladý pár alebo ako investícia na prenájom s dobrý výnosom.

Uprednostňujeme seriózne a rýchle jednanie, ktoré vieme odmeniť formou zvýhodnených podmienok pre kupujúceho. 

V cene nehnuteľnosti je zahrnutý aj kompletný právny servis, vypracovanie zmluvy a poplatky spojené s prevodom vlastníckych práv. 

V prípade záujmu o obhliadku tohto zaujímavého bytu alebo viac informácií ma kontaktujte.

 

Tomáš Matta

0948 368 183

tomas.matta@megarealitka.sk

Vlastnosti

Status:
aktívne
Vlastníctvo:
osobné
Úžitková plocha:
40.3 m2
Zastavaná plocha:
40.3 m2
Stav:
úplne prerobený
Typ budovy:
panelová stavba
Verejné vonkajšie parkovanie:
áno
Špajza:
áno
Výťah:
áno
Poschodie:
7
Celková plocha:
40.3 m2

Informatívna úverová kalkulačka

Pozrieť na mape

Maklér

Som rodák z mesta Humenné a moje blízke i vzdialené okolie ma vníma ako dlhoročného odborníka v oblasti obchodu. Ako sa vyvíja život, tak aj v tom mojom nastal čas, kedy som moje dlhoročné obchodné skúsenosti, serióznosť, lojálnosť a profesionalitu pretavil v hlbší zmysel a tým je sprostredkovanie jednej z najdôležitejších potrieb človeka - a tým je bývanie.

Mojím cieľom je nájsť Vám nielen nehnuteľnosť, ale najmä bezpečie v podobe domova.

Je pre mňa prvoradým záväzkom poskytnúť Vám špičkový servis, bez zaváhania a budem Vás sprevádzať celou realitnou transakciou s pridanou hodnotou v podobe ľudskosti a dobrého pocitu zo správneho rozhodnutia, ktorý pretrvá roky.

Motto, ktorým sa rád riadim v živote: "Ak nájdeš cestu bez prekážok, určite nikam nevedie" - F.A.Clark

Radi Vám poradíme

Podobné nehnuteľnosti