 
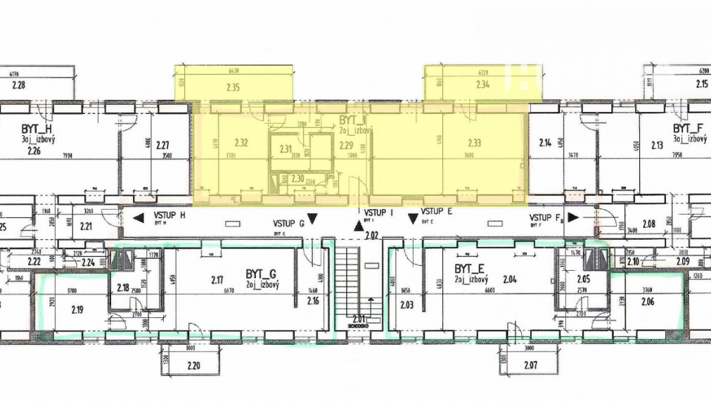
                                                                                            						PREDAJ MODERNE ZREKONŠTRUOVANÝCH BYTOV V STRÁŽSKOM (BYT E)
Predaj, Strážske
| Interné ID: | P140MIPB2 | 
|---|---|
| Ulica: | Pod hradom | 
| Obec: | Strážske | 
| Okres: | Michalovce | 
| Kraj: | Košický kraj | 
| Druh: | Byty | 
| Typ: | Predaj | 
| Typ bytu: | 2-izbový byt | 
| Iné: | 
MEGA realitná kancelária Vám PONÚKA jedinečnú príležitosť na MODERNÉ BÝVANIE v meste STRÁŽSKE v NOVOOTVORENOM KOMPLEXE BYTY POD HRADOM!
Vstúpte do nového spôsobu života v zrekonštruovaných bytoch, ktoré sú ukryté v jednoposchodovej budove, ktorá sa stala symbolom obnovy a pohody. V prvej fáze predaja Vám predstavujeme 5 výnimočných bytov na prvom poschodí, ktoré sú stvorené pre komfort a štýl.
ČO VÁM PONÚKAME:
- VEĹKOPLOŠNÉ 3-IZBOVÉ BYTY: Priestranné a vzdušné, ideálne pre rodiny alebo tých, ktorí si potrpia na priestor.
- DVOJIZBOVÉ BYTY: Dokonalé pre páry alebo jednotlivcov, ktorí túžia po útulnom a funkčnom bývaní.
- KAŽDÝ BYT JE KOMPLETNE ZREKONŠTRUOVANÝ s dôrazom na kvalitu a detaily, pripravený na to, aby ste doňho vnesli svoju osobnosť a štýl.
- BALKÓNY, ktoré sú súčasťou každého bytu, sú ideálnym miestom na relaxáciu a vychutnávanie slnečných dní.
- NÍZKE NÁKLADY NA BÝVANIE, ktoré Vám umožnia užiť si svoj nový domov bez zbytočného stresu.
- PRIVÁTNE PARKOVACIE MIESTO
VIDEOPREZENTÁCIA PROJEKTU na adrese:
https://www.youtube.com/watch?v=YQFlv8dFn2k
PREDMETOM TOHTO INZERÁTU JE 2-IZBOVÝ BYT O VÝMERE 64,78 m2 (BYT H) + 2 x Balkón
Základné informácie o byte:
- byt v osobnom vlastníctve - bez ťarchy 
- cena za byt - 132.000 € 
- výmera bytu -  64,78 m2
- výmera balkónov -  DVA balkóny o celkovej výmere 23,27 m2 
- 1. poschodie
- bez výťahu
- 2 izby (obývačka spojená s kuchyňou, spálňa), kúpeľňa, samostatné WC, chodba, 2 x balkón
- byt sa predáva nezariadený
- vykurovanie bytu - podlahové kúrenie (chodba, kúpeľňa, WC) + elektrické konvektory (izby)
- výroba teplej vody - elektrický bojlet so zásobníkom 120 l
.  plastové okná - izolačné 3-sklo, 8 komorové
- VSTUPNÉ DVERE do bytu - protipožiarne a bezpečnostné
- príprava na klimatizáciu
- Internet a TV - áno - ANTIK
- predpokladané náklady na energie - 100 € 
- parkovanie -  k bytu prináleží JEDNO PARKOVACIE MIESTA pri bytovom dome
- Vstup do budovy - elektronický vrátnik
- kamerový systém v budove
- bytový dom sa nachádza v lokalite s plnou občianskou vybavenosťou
3D obhliadka bytu:
https://my.matterport.com/show/?m=LVHFAWSYoJF
Na ostatné otázky Vám rád odpoviem pri osobnej obhliadke
V cene nehnuteľnosti je zahrnutý aj kompletný právny servis, vypracovanie zmluvy a poplatky spojené s prevodom vlastníckych práv. 
Nenechajte si ujsť túto jedinečnú príležitosť! Príďte sa presvedčiť o kvalite a jedinečnosti týchto bytov na obhliadke. Vytvorte si svoj sen o dokonalom bývaní a staňte sa súčasťou tejto prekrásnej komunity.
V prípade Vášho záujmu o kúpu tohto bytu ma prosím kontaktujte:
Mgr. Miroslav Paulik
0917 300 465
miroslav.paulik@megarealitka.sk
 
                                        Realitný maklér
Nájsť ľuďom tú správnu nehnuteľnosť je mojím poslaním už 15 rokov. Najskôr to bolo v rámci správy priemyselného parku a teraz je to v MEGA realitnej kancelárii. Pre zákazníkov sa snažím vždy robiť maximum, aby som sa im mohol kedykoľvek pozrieť čestne do očí.
Úsmev a zodpovedná príprava je to, čo ma sprevádza celým pracovným životom. Mojou odmenou je poďakovanie spokojného zákazníka, ktoré ma vždy poteší.
Aj Vy môžete byť jedným z nich!