Používame cookies

Súbory cookie a ďalšie technológie sledovania používame na zlepšenie vášho zážitku z prehliadania našich webových stránok, na to, aby sme vám zobrazovali prispôsobený obsah a cielené reklamy, na analýzu návštevnosti našich webových stránok a na pochopenie toho, odkiaľ naši návštevníci prichádzajú. Viac info

REZERVOVANÝ NADČASOVÝ 2-IZBOVÝ BYT S BALKÓNOM - HUMENNÉ

Interné ID: P047TOMB2
Ulica: Dobrianskeho
Obec: Humenné
Okres: Humenné
Kraj: Prešovský kraj
Druh: Byty
Typ: Predaj
Typ bytu: 2-izbový byt
Iné:

Virtuálna prehliadka

Popis nehnuteľnosti

MEGA realitná kancelária Vám ponúka v EXKLUZÍVNOM zastúpení klienta NA PREDAJ štýlový, a kompletne zrekonštruovaný 2-izbový byt vysokého štandardu, nachádzajúci sa v tehlovom bytovom dome na ideálnom 1. poschodí na vyhľadávanej Dobrianskeho ulici v širšom centre mesta Humenné, len 500 m od pešej zóny.

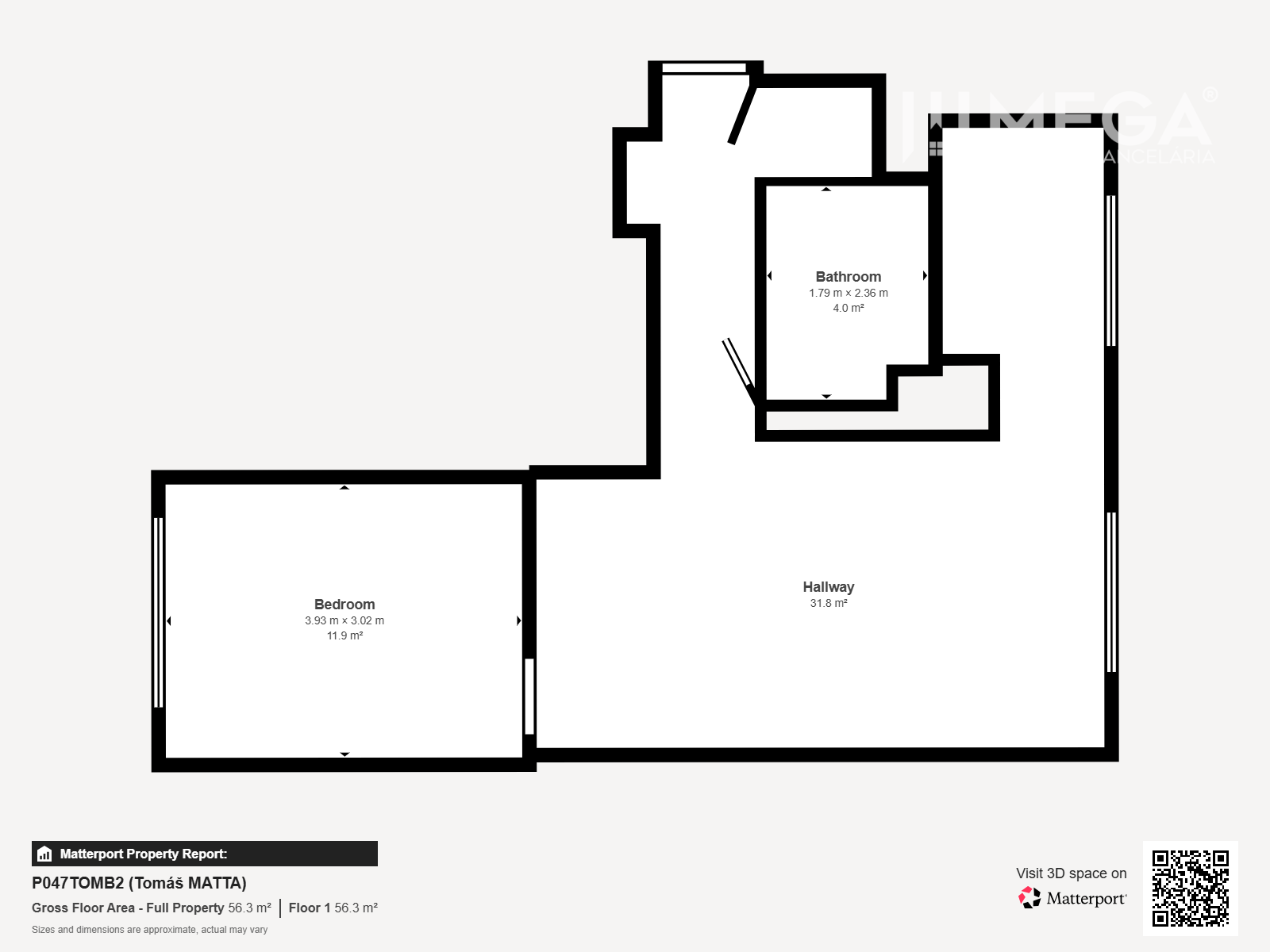
Byt o celkovej výmere 53 m² zaujme premyslenou dispozíciou, nadčasovým dizajnom a dôrazom na prémiové materiály a remeselné spracovanie.

3D OBHLIADKA: https://my.matterport.com/show/?m=3EhAJvTf6dH

Základné informácie:

  • celková výmera 53 m²
  • tehlový bytový dom
  • ideálne 1. poschodie – výborná teplotná pohoda
  • pivnica k bytu je v cene
  • byt je voľný ihneď
  • vhodný na okamžité  nadštandardné bývanie bez ďalších investícií
  • ideálny aj ako investičný byt s výborným výnosovým potenciálom

Dispozícia bytu:

  • vstupná predsieň
  • samostatná toaleta
  • kúpeľňa so sprchovým kútom so sklenenou stenou
  • priestranná obývacia izba prepojená s modernou otvorenou kuchyňou
  • spálňa s výstupom na balkón

Rekonštrukcia a vybavenie:

Byt prešiel kompletnou a nadštandardnou rekonštrukciou, ktorá zahŕňa:

  • nové elektroinštalácie, stúpačky, vodovodné a odpadové rozvody
  • nové murované bytové jadro s luxusnou sanitou
  • kvalitné interiérové dvere s obložkami a bezpečnostné vstupné dvere
  • kuchynská linka na mieru z masívu so vstavanými elektrospotrebičmi
  • nábytok na mieru z masívu – vstavaná skriňa, TV stolík, botník s vešiakovou stenou, všetko v jednotnom odtieni a prémiovej kvalite
  • vyrovnané podlahy, kvalitné plávajúce podlahy a dlažby
  • nové stierky, znížené stropy so zapustenými puzdrami na garniže
  • nové, značkové plastové okná
  • záclony a závesy
  • dizajnové obklady v kúpeľni a dizajnové osvetlenie v celom byte
  • balkón bude vybavený novou dlažbou a vkusný plastovým obkladom

Lokalita:

Byt sa nachádza v širšom centre mesta Humenné s kompletnou občianskou vybavenosťou:

  • školy, škôlky
  • obchody a služby
  • pešia zóna
  • MHD, vlaková stanica

Tento byt je ideálnou voľbou pre tých, ktorí hľadajú vysoký komfort,  nadštandardnú kvalitu a štýl v skvelej lokalite.

Uprednostňujeme seriózne a rýchle jednanie, ktoré vieme odmeniť formou zvýhodnených finančných podmienok pre kupujúceho. 

V cene nehnuteľnosti je zahrnutý aj kompletný právny servis, vypracovanie zmluvy a poplatky spojené s prevodom vlastníckych práv. 

V prípade záujmu o obhliadku tohto nadštandardného bytu alebo viac informácií ma neváhajte kontaktovať.

 

Tomáš Matta

0948 368 183

tomas.matta@megarealitka.sk

Vlastnosti

Status:
aktívne
Vlastníctvo:
osobné
Úžitková plocha:
53 m2
Zastavaná plocha:
53 m2
Podlahová plocha:
53 m2
Stav:
úplne prerobený
Typ budovy:
tehla
Balkón:
áno
Pivnica:
áno
Verejné vonkajšie parkovanie:
áno
Celková plocha:
53 m2

Informatívna úverová kalkulačka

Pozrieť na mape

Maklér

Som rodák z mesta Humenné a moje blízke i vzdialené okolie ma vníma ako dlhoročného odborníka v oblasti obchodu. Ako sa vyvíja život, tak aj v tom mojom nastal čas, kedy som moje dlhoročné obchodné skúsenosti, serióznosť, lojálnosť a profesionalitu pretavil v hlbší zmysel a tým je sprostredkovanie jednej z najdôležitejších potrieb človeka - a tým je bývanie.

Mojím cieľom je nájsť Vám nielen nehnuteľnosť, ale najmä bezpečie v podobe domova.

Je pre mňa prvoradým záväzkom poskytnúť Vám špičkový servis, bez zaváhania a budem Vás sprevádzať celou realitnou transakciou s pridanou hodnotou v podobe ľudskosti a dobrého pocitu zo správneho rozhodnutia, ktorý pretrvá roky.

Motto, ktorým sa rád riadim v živote: "Ak nájdeš cestu bez prekážok, určite nikam nevedie" - F.A.Clark

Radi Vám poradíme

Podobné nehnuteľnosti