Používame cookies

Súbory cookie a ďalšie technológie sledovania používame na zlepšenie vášho zážitku z prehliadania našich webových stránok, na to, aby sme vám zobrazovali prispôsobený obsah a cielené reklamy, na analýzu návštevnosti našich webových stránok a na pochopenie toho, odkiaľ naši návštevníci prichádzajú. Viac info

NOVÁ CENA-PREDAJ 3-izbového bytu v HUMENNOM (sídlisko 2A)

Interné ID: P195MIPB3
Ulica: Puškinova
Mestská časť: Sídlisko II A
Obec: Humenné
Okres: Humenné
Kraj: Prešovský kraj
Druh: Byty
Typ: Predaj
Typ bytu: 3-izbový byt
Iné:
92 500 €

Virtuálna prehliadka

Popis nehnuteľnosti

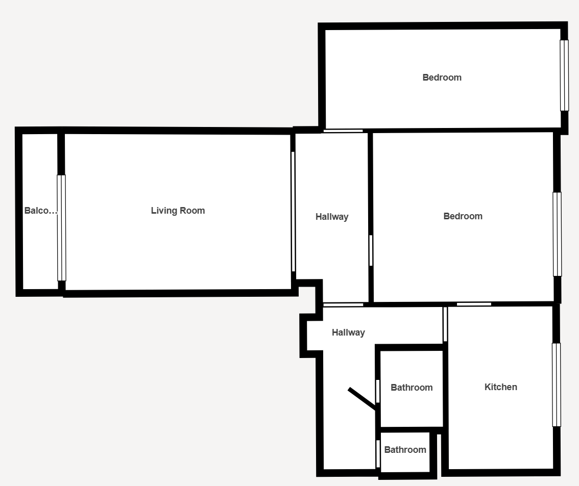
MEGA realitná kancelária ponúka NA PREDAJ 3-IZBOVÝ BYT v HUMENNOM na ulici PUŠKINOVA (sídlisko 2A).
Byt v tehlovej bytovke je V PÔVODNOM NO VEĽMI ZACHOVALOM STAVE.
TERAZ s NOVOU LEPŠOU CENOU !!!

Aktuálny stav bytu dovoľuje okamžité užívanie, no zároveň ponúka potenciál na prerobenie do podoby štýlového mestského bývania.

3D obhliadka bytu na adrese (heslo na vyžiadanie):
https://my.matterport.com/show/?m=Gu6CQTLAA6h

AK HĽADÁTE BYT S DOBROU POLOHOU A POTENCIÁLOM, NEVÁHAJTE MA KONTAKTOVAŤ A DOHODNITE SI OBHLIADKU.

ZÁKLADNÁ CHARAKTERISTIKA BYTU:
byt v osobnom vlastníctve v tehlovej bytovke
- bez ťarchy

- celková výmera bytu - 64 m
- lódžia - áno - 3 m2 - vstup z obývačky (zasklený)
- pivnica - áno - 2 x 1,5 m2            -  
- 3. poschodie (z celkových 4)
- bez výťahu
- obývačka + spálňa + 1 x izba + kuchyňa + kúpeľňa + samostatné WC + chodba
- STAV BYTU:
   - pôvodný stav vo veľmi zachovalom stave
   - plastové okná so žalúziami
   - plávajúce podlahy v izbách obývačka + spálňa
   - vymurovaná kúpeľňa
- orientácia bytu - sever (kuchyňa, spálňa, izba) a juh (obývačka s balkónom)
- TV + INTERNET - TKR - aktuálne vypnuté
- aktuálne náklady na bývanie - 180 €/mesačne ( SVB + elektrina + plyn) - 1 osoba
- byt v správe SVB MAMBYT
- Bytový dom zateplený a zrekonštruovaná strecha
parkovanie - verejné - v okolí bytového domu
- bytový dom sa nachádza v lokalite s plnou občianskou vybavenosťou
-
predávajúci si vyhradzuje právo výberu kupujúceho

V cene nehnuteľnosti je zahrnutý aj kompletný právny servis, vypracovanie zmluvy a poplatky spojené s prevodom vlastníckych práv. 

V prípade Vášho záujmu o kúpu tohto bytu ma prosím kontaktujte:
Mgr. Miroslav Paulik
0917 300 465
miroslav.paulik@megarealitka.sk

Vlastnosti

Status:
aktívne
Vlastníctvo:
osobné
Úžitková plocha:
63 m2
Zastavaná plocha:
63 m2
Stav:
čiastočne prerobený
Počet izieb:
3
Typ budovy:
tehla
Typ výbavy:
čiastočne vybavený
Loggia:
áno
Celková plocha:
63 m2
Plocha loggie:
3 m2
Počet logií:
1
Vykurovanie - centrálne:
áno
Optická sieť:
áno

Informatívna úverová kalkulačka

Pozrieť na mape

Maklér

Nájsť ľuďom tú správnu nehnuteľnosť je mojím poslaním už 15 rokov. Najskôr to bolo v rámci správy priemyselného parku a teraz je to v MEGA realitnej kancelárii. Pre zákazníkov sa snažím vždy robiť maximum, aby som sa im mohol kedykoľvek pozrieť  čestne do očí.

Úsmev a zodpovedná príprava je to, čo ma sprevádza celým pracovným životom. Mojou odmenou je poďakovanie spokojného zákazníka, ktoré ma vždy poteší.

Aj Vy môžete byť jedným z nich!

Radi Vám poradíme

Podobné nehnuteľnosti