Používame cookies

Súbory cookie a ďalšie technológie sledovania používame na zlepšenie vášho zážitku z prehliadania našich webových stránok, na to, aby sme vám zobrazovali prispôsobený obsah a cielené reklamy, na analýzu návštevnosti našich webových stránok a na pochopenie toho, odkiaľ naši návštevníci prichádzajú. Viac info

Na predaj veľký 3 izbový byt s balkónom na sidl.III v Humennom

Interné ID: P129TOHB3
Ulica: Laborecká
Mestská časť: Sídlisko III
Obec: Humenné
Okres: Humenné
Kraj: Prešovský kraj
Druh: Byty
Typ: Predaj
Typ bytu: 3-izbový byt
135 000 €

Virtuálna prehliadka

Popis nehnuteľnosti

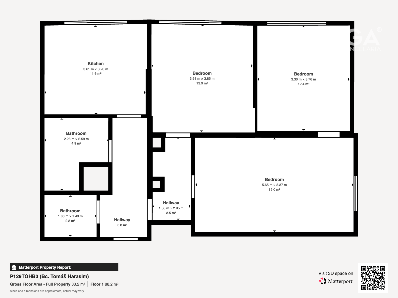
Mega realitná kancelária exkluzívne ponúka na predaj priestranný 3-izbový byt s výmerou 75 m² na vyhľadávanej Laboreckej ulici v Humennom. Byt prešiel rekonštrukciou a vďaka praktickej dispozícii, balkónu a dostatku úložného priestoru je ideálnou voľbou najmä pre rodiny s deťmi, ktoré hľadajú komfortné bývanie bez nutnosti ďalších veľkých investícií.

Byt pozostáva zo vstupnej chodby, kuchyne, priestrannej obývacej izby s balkónom, spálne, detskej izby, veľkej kúpeľne a samostatného WC. K bytu patrí aj pivnica, ktorá poskytuje ďalší úložný priestor. Veľkým benefitom je kuchynská linka vyrobená na mieru, ktorá ponúka praktické a estetické riešenie pre každodenné fungovanie domácnosti.

Nehnuteľnosť je po rekonštrukcii, má murované jadro, kúpeľňa je obložená keramickým obkladom, vstupné dvere sú bezpečnostné, radiátory sú nové a podlahy sú plávajúce. Byt tak pôsobí veľmi príjemným a udržiavaným dojmom, pričom novým majiteľom poskytuje pohodlné bývanie bez potreby rozsiahlych úprav.

Laborecká ulica v Humennom patrí medzi obľúbené lokality, ktoré ponúkajú dobrú občiansku vybavenosť a pohodlné mestské bývanie. Lokalita je vhodná najmä pre rodiny, ktoré ocenia dostupnosť služieb, priestor a praktické dispozičné riešenie bytu.

Cena nehnuteľnosti: 135 000 €

3D obhliadka: https://my.matterport.com/show/?m=eajQutm71nX

V cene je zahrnutý kompletný právny servis, návrh na vklad vlastníckeho práva do katastra aj hypotekárne poradenstvo.
Mega realitná kancelária
Bc. Tomáš Harasim
tel.: 0915 186 745
e-mail: tomas@megarealitka.sk

Vlastnosti

Status:
aktívne
Vlastníctvo:
osobné
Priechodná izba:
áno
Úžitková plocha:
75 m2
Zastavaná plocha:
75 m2
Podlahová plocha:
75 m2
Stav:
čiastočne prerobený
Počet izieb:
3
Loggia:
áno
Pivnica:
áno
Výťah:
áno
Poschodie:
4
Celková plocha:
75 m2
Vykurovanie - centrálne:
áno

Informatívna úverová kalkulačka

Pozrieť na mape

Maklér

Realitný expert s výsledkami, ktoré hovoria za seba.

V realitách nepredávajú sľuby, ale dáta, vzdelanie a trhová sila. Ak hľadáte makléra, ktorý do predaja vašej nehnuteľnosti vloží akademickú precíznosť a dravosť lídra trhu, som tu pre vás.

Prečo som pre vás jasnou voľbou?

Od roku 2017 som osobne a úspešne previedol celým procesom predaja 137 klientov. Každý z týchto obchodov mi dal praktickú skúsenosť, ktorú neponúka žiadna učebnica – schopnosť vyjednať najlepšiu cenu za akýchkoľvek podmienok na trhu.

Ako spolumajiteľ stojím na čele siete, ktorá od svojho vzniku v roku 2021 do konca roka 2025 úspešne zrealizovala 457 predajov a viac ako 215 prenájmov. Toto masívne trhové pokrytie nám dáva bezkonkurenčný prehľad o aktuálnom dopyte a prístup k tisíckam potenciálnych kupujúcich.

V roku 2023 som zavŕšil štúdium na Slovenskej realitnej akadémii ziskom titulu RSc. (Real Estate Consultant). Rozumiem ekonomickým súvislostiam a právnym detailom, ktoré bežným maklérom unikajú.

Moja odbornosť je potvrdená úspešným licencovaním v NARKS (2026). Pre vás to znamená stopercentnú bezpečnosť transakcie a prácu podľa najprísnejších etických noriem na trhu.

Nehľadám kupcov, hľadám optimálne riešenia. Využívam silu nášho 11-členného tímu a moje osobné know-how, aby som váš majetok premenil na kapitál s maximálnou efektivitou.

Mojím životným  mottom je výrok Milana Rastislava Štefánika: „Pre ľudí pevného predsavzatia a vytrvalosti niet nemožnosti.“

Radi Vám poradíme

Podobné nehnuteľnosti